MARTA
Multi-Use I Holiday Let
Creating amazing spaces and experiences
Marta
It's Marmite - Love It - Hate It?
Okay, so Marta is, as has been pointed out is a bit of a Marmite character, you’ll love it or hate it! In reality the same can be said of all of our buildings, after all it’s always down to your personal preference.
Marta is no traditional log cabin but it is an extraordinary one and small enough to fit into a moderately sized garden increasing the range of uses to which it can be put?
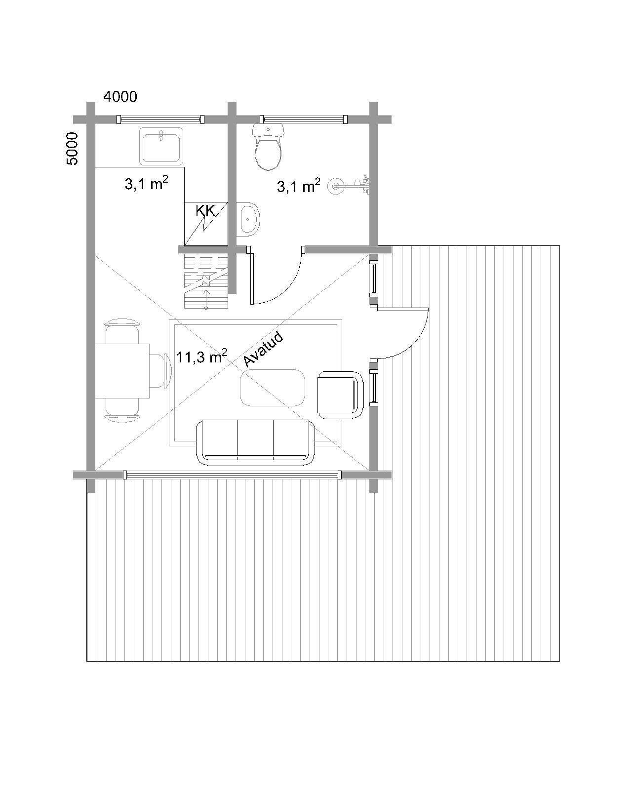
Using an alternate tread staircase allows access to a loft style sleeping or storage area and Marta also features a kitchenette, walk In shower with WC and a small lounge.
On a glamping site then it's a building that offers unique accommodation, at a premium price, unusually a building you can stand perfectly upright in everywhere, use year round and which will easily repay it's investment with a lifespan in excess of 100 years.
Marta - Floors 1 I 17.5 m2 I Bathroom I Kitchenette , Small Lounge, Dining Area I Storage or Bed (over kitch/bathroom) I Terrace as Option
Ground Floor - clockwise from left
- Kitchenette
- Walk-In Shower I WC
- Lounge I Dining
Click for larger image
Planning, Build, Value, Longevity & the Environment
Most buildings in our portfolio will require planning permission, if you are not familiar with the planning process then it can be something of a minefield and professional help should always be sought, to help you we have produced a handy quide which explains how the process works - click on the icon below.
Our buildings benefit from fast build times once on site - assembly takes between 1 and 5 weeks depending on the size and complexity? Unlike traditional building methods which typically take between 6 to 12 months and are dependant on the weather.
Build costs for traditional building methods range from around £2,700 per square metre to over £3,000 per square metres for a higher spec build - the costs then for a typical 4 bed home, depending on the location, will come out at around £400,000. Your log building once committed to manufacture will be fixed in price, no budgetting for cost over-runs as is the norm of conventional build methods and we will be considerably more cost-effective to build, saving you time and money!
Whilst Ritsu make use of modern processing and production methods, the basic design principles are those of log homes that have been in use of hundreds of years - tried and tested then, when we say your building should last for 100 years or more, it's based on experience, not supposition.
Finally, you will be buying a log building that is amongst the most environmentally friendly buildings available, and also, one of the healthiest environments in which to live and work.








