NIDA
Holiday Let I Cafe I Retail
Creating amazing spaces and experiences
Nida
Versatile It Is
Simple, clean lines, it’s shape and size make Nida one of the most versatile buildings in our portfolio.
Size wise it’s just about on the limit for fitting into a moderately sized garden without becoming disproportionately large.
A conventional log cabin it is not, the method of assembly though remains very attached to the humble log cabin, except that square logs are used with our “City Corners” which should help to ease progress through planning?
Shown here with two double bedrooms, it’s perfect for a multitude of uses in the garden. Commercially, all sorts of options open up - an office, a small production unit, a cafe maybe?.
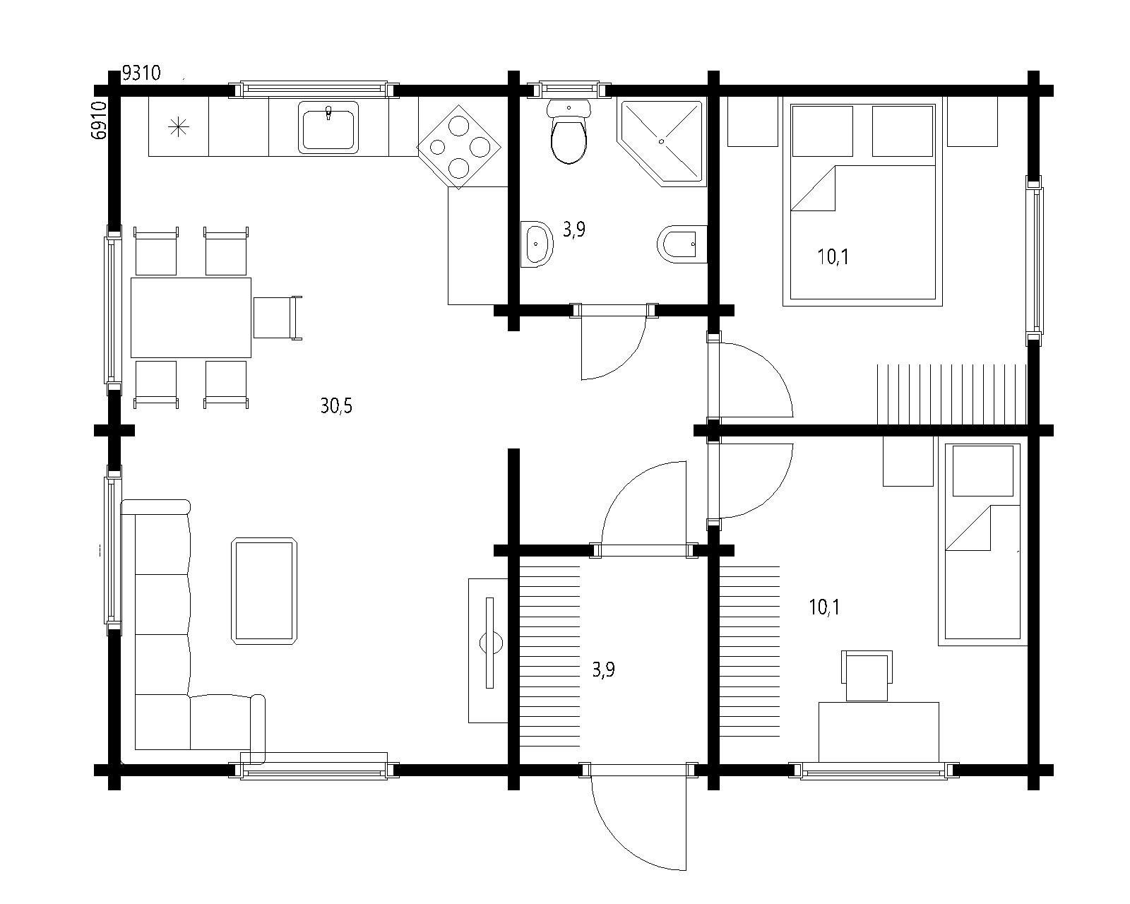
Nida - Floors 1 I 58.5 m2 I Entrance Lobby I Kitchen/Dining Area I Lounge I Bathroom I Beds 2
Ground Floor - clockwise from left
- Kitchen
- Dining
- Bathroom
- Double Bedroom
- Double Bedroom
- Entrance Vestibule
- Lounge
Click for larger image
Planning, Build, Value, Longevity & the Environment
Most buildings in our portfolio will require planning permission, if you are not familiar with the planning process then it can be something of a minefield and professional help should always be sought, to help you we have produced a handy quide which explains how the process works - click on the icon below.
Our buildings benefit from fast build times once on site - assembly takes between 1 and 5 weeks depending on the size and complexity? Unlike traditional building methods which typically take between 6 to 12 months and are dependant on the weather.
Build costs for traditional building methods range from around £2,700 per square metre to over £3,000 per square metres for a higher spec build - the costs then for a typical 4 bed home, depending on the location, will come out at around £400,000. Your log building once committed to manufacture will be fixed in price, no budgetting for cost over-runs as is the norm of conventional build methods and we will be considerably more cost-effective to build, saving you time and money!
Whilst Ritsu make use of modern processing and production methods, the basic design principles are those of log homes that have been in use of hundreds of years - tried and tested then, when we say your building should last for 100 years or more, it's based on experience, not supposition.
Finally, you will be buying a log building that is amongst the most environmentally friendly buildings available, and also, one of the healthiest environments in which to live and work.








