LAGLE
4 Bedrooms I Family Home
Creating amazing spaces and experiences
Lagle
Vestiges of a Barn?
Lagle is a log building of mid-sized proportions offering 4 bedrooms - two double and two large single.
Like Laana, it shares a similar approach to design drawing on barns for visual appeal with its half-hipped design and vertical clad gable ends.
It’s smaller than Laana by some 30 square meters but still manages to create for s seemingly spacious home.
The layout, flexible as always, can be amended to create a more functional layout to suit your families needs, Lagle's design is perfectly in tune for life in the country but City Corners are on hand to remove the castellated corners if required.
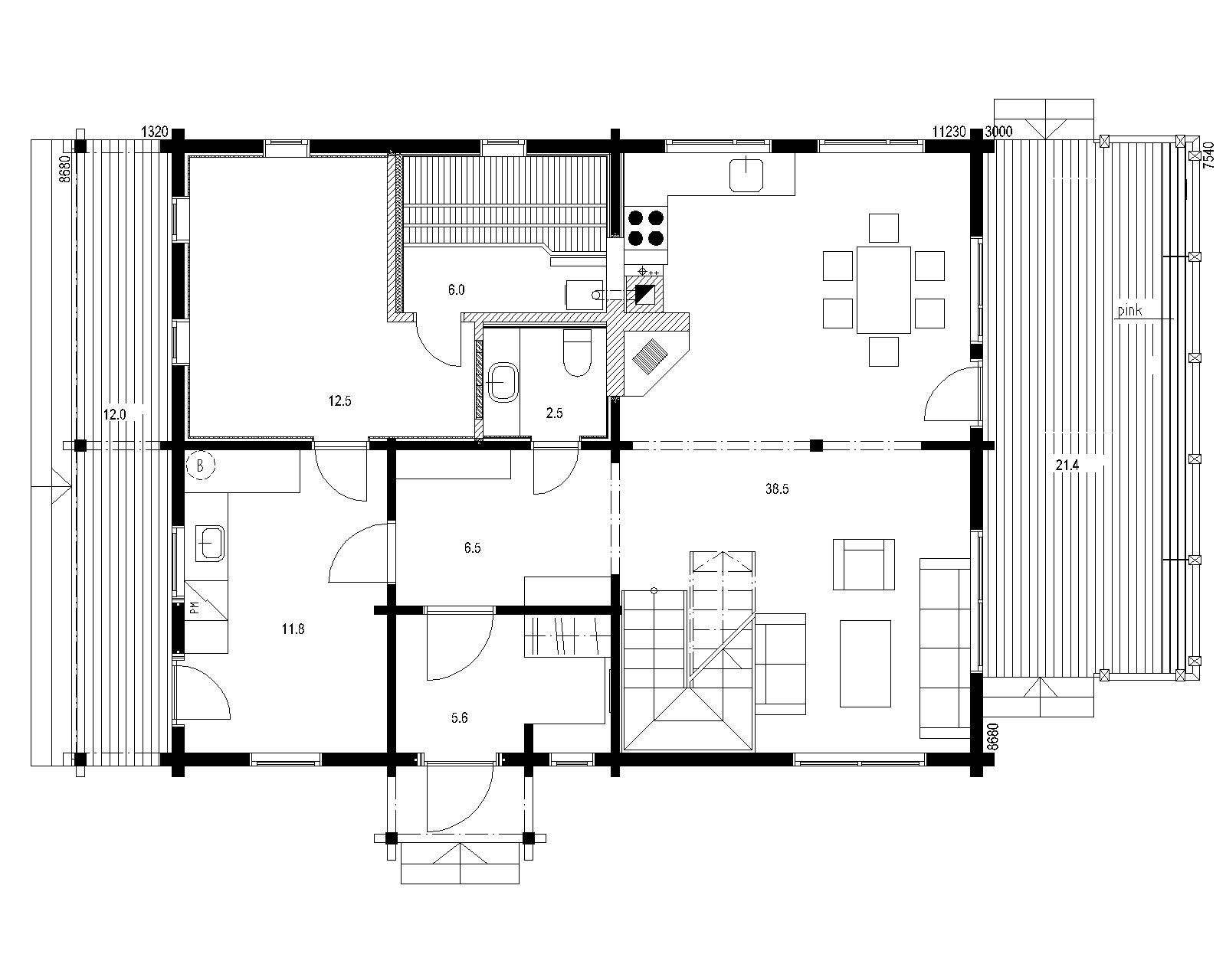
Lagle- Floors 2 I 141.9 m2 I Entrance Lobby I Hall I Kitchen I Dining I Lounge I Large Family Bathroom I WC I Utility Room I Landing I M/Bedroom with Balcony I Beds 3 I Bathroom I Terrace/Balcony 36.1 m2
Ground Floor - clockwise from left
- Ante Room I Sauna
- WC
- Kitchen
- Dining
- Lounge
- Stairs
- Entrance Vestibule I cloaks
- Hall
- Utility Room
Click for larger image
Lagle- Floors 2 I 141.9 m2 I Entrance Lobby I Hall I Kitchen I Dining I Lounge I Large Family Bathroom I WC I Utility Room I Landing I M/Bedroom with Balcony I Beds 3 I Bathroom I Terrace/Balcony 36.1 m2
First Floor - clockwise from left
- Large Double Bedroom with access to private balcony
- Double Bedroom
- Bathroom
- Double Bedroom
- Landing I Stairs
- Single Bedroom
Planning, Build, Value, Longevity & the Environment
Most buildings in our portfolio will require planning permission, if you are not familiar with the planning process then it can be something of a minefield and professional help should always be sought, to help you we have produced a handy quide which explains how the process works - click on the icon below.
Our buildings benefit from fast build times once on site - assembly takes between 1 and 5 weeks depending on the size and complexity? Unlike traditional building methods which typically take between 6 to 12 months and are dependant on the weather.
Build costs for traditional building methods range from around £2,700 per square metre to over £3,000 per square metres for a higher spec build - the costs then for a typical 4 bed home, depending on the location, will come out at around £400,000. Your log building once committed to manufacture will be fixed in price, no budgetting for cost over-runs as is the norm of conventional build methods and we will be considerably more cost-effective to build, saving you time and money!
Whilst Ritsu make use of modern processing and production methods, the basic design principles are those of log homes that have been in use of hundreds of years - tried and tested then, when we say your building should last for 100 years or more, it's based on experience, not supposition.
Finally, you will be buying a log building that is amongst the most environmentally friendly buildings available, and also, one of the healthiest environments in which to live and work.









