LAIDI
4 Bedrooms I Family Home
Creating amazing spaces and experiences
Laidi
Adaptable, Versatile?
Country or town, Laidi could fit the bill to become your next home, holiday let or “forever” home?
It’s another mid-sized log building offering a flexible layout with 3-4 bedrooms, 1 double room with En-Suite or walk in robe downstairs, 3 doubles upstairs.
With the normal range of options available on the ground floor with the space occupied by the sauna being free for other possible uses?
It retains its log cabin looks without being too radical for for use in the town, but of course we have recourse to using City Corners to increase the prospect of a successful passage through planning.
Don't forget, our log homes easily out-perform conventional builds in many ways, especially their environmental credentials and log homes create healthy living conditions.
Laidi
- Floors 2 I 176.4 m2 I Entrance Lobby I Kitchen I Dining I Lounge I Bedroom/Other I WC I Bathroom I Sauna I Landing I Master Bedroom with En-Suite I Beds 2 I Bathroom I Terrace 36.3 m2
Ground Floor - clockwise from left
- Lounge
- Sauna I Bathroom
- Store
- Double Bedroom
- WC
- Entrance Vestibule I Cloaks
- Stairs
- Kitchen
- Dining
Click for larger image
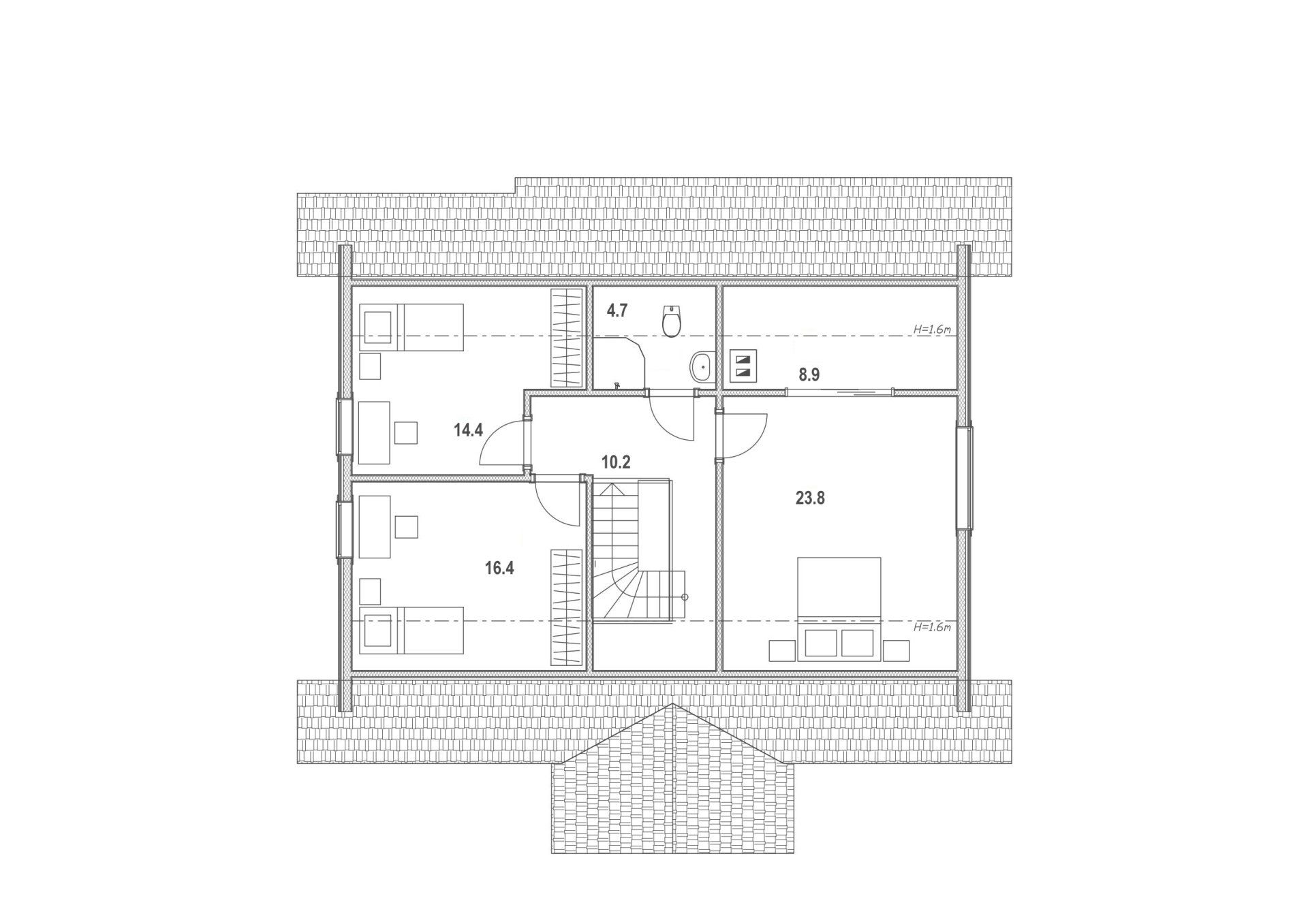
Laidi
- Floors 2 I 176.4 m2 I Entrance Lobby I Kitchen I Dining I Lounge I Bedroom/Other I WC I Bathroom I Sauna I Landing I Master Bedroom with En-Suite I Beds 2 I Bathroom I Terrace 36.3 m2
First Floor - clockwise from left
- Double Bedroom
- Bathroom
- Master Bedroom with En-Suite
- Stairs I Landing
- Double Bedroom
Laidi as built


Planning, Build, Value, Longevity & the Environment
Most buildings in our portfolio will require planning permission, if you are not familiar with the planning process then it can be something of a minefield and professional help should always be sought, to help you we have produced a handy quide which explains how the process works - click on the icon below.
Our buildings benefit from fast build times once on site - assembly takes between 1 and 5 weeks depending on the size and complexity? Unlike traditional building methods which typically take between 6 to 12 months and are dependant on the weather.
Build costs for traditional building methods range from around £2,700 per square metre to over £3,000 per square metres for a higher spec build - the costs then for a typical 4 bed home, depending on the location, will come out at around £400,000. Your log building once committed to manufacture will be fixed in price, no budgetting for cost over-runs as is the norm of conventional build methods and we will be considerably more cost-effective to build, saving you time and money!
Whilst Ritsu make use of modern processing and production methods, the basic design principles are those of log homes that have been in use of hundreds of years - tried and tested then, when we say your building should last for 100 years or more, it's based on experience, not supposition.
Finally, you will be buying a log building that is amongst the most environmentally friendly buildings available, and also, one of the healthiest environments in which to live and work.









